Cartwright House

From OakthorneWiki
Jump to navigationJump to search
TychonianSystem.jpg

2074 East Cullerton Street, Near South Side, Chicago, IL

The Cartwright House, located in Chicago’s Near South Side, is a relic of the past. Like many of the houses that once stood around it, the Cartwright House was built in the mid 1800s by wealthy land owners. Unlike many of those mansions, however, the Cartwright House still stands, despite the rise of the warehouses and factories that sprung up around it. Though the neighborhood has begun to see some measure of evolution to it, with cheap apartment residences and inexpensive retail strips replacing some of the industrialization in the area, the Cartwright House still stands.

The Cartwright House is something of a mystery to most of those who live or work in the area. Its exterior tends to be somewhat run-down and soot-covered, thanks to the nearby railroad and factories. Wind off the Lake often contributes to the layers of grime, though less so in recent years. The house itself is tucked back among a set of warehouses, an old factory that has been turned into retail shops with apartments above them and a factory to its north. Some of these buildings are built quite tightly up against the Cartwright House, so much so that the house can be difficult to find by those who don’t know what they are looking for — though the locals certainly know it, and are happy to tell visitors to “look for the stained glass.”

Though the house was once owned by the wealthy Cartwright family of shipping magnates, the locals don’t properly know who owns it. Folks come and go from the house on something of a regular basis, and the trash, coal, milk and grocery men still make stops in the alley that leads to the house’s back doors, so someone is definitely living there. Indeed, the locals know only one of the House’s residents by sight — Hadrian, the English bulldog that spends many of his days in one of the small dog run yards that flank the Cullerton Street entrance of the house.

Almost no one remembers the old Cartwight Observatory, the tall tower the Cartwrights built to satisfy Mr. Cartwright’s interest in astronomy. Occasionally, though, an historian or other passerby will stop in at the back gate, where the entrance to the Observatory used to be and peer through the wrought-iron gate there, looking up at the tower that somehow rises above the buildings around it, and yet cannot be seen from the streets outside the alley. The locals tell stories around the weird things occasionally glimpsed through the glass walls of the very topmost floor, and speculate about what might be going on there.

First Floor, Cartwright House

Sanctum.jpg

East Cullerton St Entrance (1): The main entrance to the Cartwright House is just off of East Cullerton Street, flanked by a set of warehouses to the east, and a smaller building that consists of shops on the first floor, and low-income apartments on the second floor to its west. Though they aren’t the highest quality establishments, there is a diner, Darla’s, tucked among the businesses that Axios frequents regularly.

The front façade of the building is quite impressive, if a little crumbling. A set of massive oak double doors opens to the house, and a small bellchain hangs from the wall next to the door. To either side of the entrance is the wrought-iron gates that lead to the pet runs along the side of the house. Above the door is a massive, circular stained glass piece depicting the Tychonian System in gorgeous jewel tones. This is the only window on the front brownstone façade.

Pet Runs (2): Little strips of land between the house and the buildings that flank it, these pet runs were originally set up to provide strips of grass, with a small tree on the very southern end, peeking up above the five-foot tall brick wall. Unfortunately, the pet runs sit in shade most of the time, meaning that only the hardiest of creeping ivy and weeds still grow in these areas, though Martin keeps them in decent condition. The two trees, an elm on the east and an oak on the west, are stunted and rather small, but healthy otherwise. Martin often lets Axios’ English bulldog, Hadrian, run around in one of these runs during the day.

Foyer (3): The foyer to the Cartwright House is a massive two-story affair, done in dark hardwoods and brass finishings. It is dominated by the huge Tychonian stained glass window up on the second story, which takes up nearly the entire wall there. The floors here are covered in elegant Persian rugs, and there are a pair of upholstered chairs and a small round lamp table in each of the southern corners.

The walls are bare here at eye level, though there are small wall-nooks on the second story level, which bear the weight of classical marble statues. A statue of Mercury bearing his cadeucus, stands above the archway that leads into the rest of the first floor. Statues of Venus and Mars adorn the easter wall, while Jupiter and Saturn decorate the western wall. An archway leads further into the house on the first level, and two wide staircases lead up to the promontory of the upper foyer above, with another set of statues on the landings: Helios on the eastern landing, and Selene on the western.

Closets (4): These fair-sized closets hold extra furniture and other supplies necessary for the study and drawing room. Each also features a small hidden panel that opens the hollows beneath the staircases, perfect for hiding items – or even people.

Travel Gallery (5): A long cream and gold carpet runs down the length of this gallery, which is decorated with sepia photographs, paintings and the occasional small object of art upon a table beneath glass. All of these things are mementoes of Axios’ travels abroad, and the attentive visitor will notice a theme to them: they are all photographs of marketplaces, banks, hospitals, healing wells and similar sites appropriate to Mercury.

Likewise, the souvenirs under glass are all ancient examples of money, vases showing the wind and similar objects. The truly astute observer may notice that gold design painted on the cream-colored plaster ceiling is actually a stylized caduceus.

Drawing Room (6): The drawing room is done in dark woods, with blue carpeting and dark leather upholstered furniture. Silver accents abound, from the bull-head accents on the furniture arms and backs to the subtle threads woven into the carpet. A painting of a mountain crowned in thunderheads dominates the area above the hearth, which has iron hearth-pieces in the shape of bulls.

Silver-hued lamps with storm-grey shades are found here and there, and the western wall is lined with bookshelves containing law books, accounting ledgers and political history texts. A small bar, with silver service and plenty of whiskey, bourbon and other dark liquors is along the wall between the double doors that lead into the room, and the closet door. The astute observer will notice plenty of Jovian symbolism in the room.

Study (7): The study is done up in deep reds and dark iron. A display of swords is set on the wall above the hearth against a red leather-covered shield accented with black iron. The hearth itself bears hearth-pieces made of iron and in the shape of armored war-hounds. A desk made of dark wood accented with brass sits against the eastern wall, with a tapestry depicting a scene of war accented with red and gold threads hanging behind it.

A suit of Roman armor stands along the southern wall between the window and closet door, and a small bookshelf laden with treatises on tactics, historical accounts of wars, weapons and various styles of fighting. A carpet of deep burgundy, black and copper covers the floor. The astute observer can find plenty of Martial symbolism in the room.

Dining Room (8): A massive cherry-wood table with copper fittings dominates the dining room. The single window along the north wall is decorated in green treatment, bound with copper bands, and a window box of various growing plants. The hearth is done up with brass hearth-pieces in the shape of swans, and a massive copper waterclock sits above the hearth.

The western wall is hung with several paintings depicting pastoral scenes, and the center piece of the table is generally a cornucopia, flanked by copper candlesticks. A decorative panel opens to the dumbwaiter in the northwest corner of the room, and is sometimes simply used as a food pass-through from the kitchen. The room is redolent with symbolism of Venus.

Water Closet (9): The water closet here has porcelain toilet, bidet and two wash stands, with mirrors above them. Small sachets of aromatic herbs are tucked above the door, changed weekly.

Library (10): Bookshelves dominate this room, along the western and northern wall, with the hearth flanked by glass cases, and the hearth screen made of glass and copper wiring to prevent sparks. There is also a slender bookcase along the western wall, between the main double doors leading into the room, and the water closet door. In the northern part of the room is a small vault-like chamber intended for valuables. The door is actually a swinging bookcase along the northern wall, and while not precisely hidden, it can be difficult to spot.

A staircase in the northeast corner leads to the second level of the library in the walkway above. The center of the room is dominated by a massive rectangular table, with enough seating for a dozen individuals. The center of the table holds writing sets and blank paper.

Kitchen (11): The kitchens feature fine white pine, with copper finishing. The walls are papered in a green vine and copper doves theme, and the walls practically shine from all the scrubbed copper cookware hanging from them. Window boxes with cooking herbs are set into every window in this room, with the stove and wall oven set against the western wall, next to the stairs down to the cellars.

The dumbwaiter panel is in the southeast corner of the room, and is frequently used as a food pass-through to the dining room. This room, like the dining room, is decorated in various symbolism to Venus, including a copper clamshell themed water pump and sink in the northeast corner.

Silver & Throughway (12): The southern edge of this hallway is lined with locking cabinets intended for storage of china and silver, while the northern edges of the room have counters, where food is often put in preparation for serving, or to allow it to cool.

Servant’s Chamber (13): A modest bedroom, with several pieces of furniture. Martin, Axios’ manservant, lives here, and keeps it spotless.

Servant’s Sitting Room (14): A set of sturdy furniture – including a bookcase along the southern wall and a table with wireless radio – serves as the place where Martin relaxes at the end of his day.

Servant’s Bath & Laundry (15): This laundry room also doubles as Martin’s bathroom, with a small copper tub and pump, as well as the basin for washing clothing. More often than not, though, these laundry facilities go unused, as Martin sends the laundry away to be done.

Servant’s Entrance (16): Down an alley off South Indiana Ave, the servant’s entrance alley is wide enough for service vehicles to park. Along the northeastern corner there is a wrought-iron fence set into a six-foot wall, with iron spikes along its top, and a tarnished arch with the faded “Cartwright Observatory” painted on it. The door into the house is generally kept locked, though there is a bell pull next to it.

Most visitors here are generally grocerymen, milkmen, the laundry service and similar service industry people dropping off supplies for the household. Large goods, such as shipments of wine or other alcohol, or bulk goods are set into the large goods lift to the right of the door and lowered into the cellars below. Once every two weeks, coal is delivered, and dropped down the coal chute in the southeastern most section of the house’s foundation, dropping it into the coal bin below.

Rear Courtyard (17): The rear courtyard was once a beautiful garden, complete with fountain in its center. While the fountain is still there, the marble is cracked and it is dry as a bone. The grass has been consumed by the crawling vines, which cover not only most of the ground here, leaving only occasional patches of cobblestone peeking through, but up the walls of the house and the walls of the factory along the north of the courtyard. Martin keeps the vines from doing any real damage to the house by trimming them back occasionally, but the vines rise ten feet or more off the ground along the northern wall, creating a wall of green and grey there.

A small ladder set into the cranny along the northern wall of the house leads to the rooftop, and the ground floor door of the old Cartwright Observatory tower opens onto the courtyard. Though it once led to the upper stories of the tower, Axios has redone the interior of the tower’s ground floor, turning it into separate living quarters, and preventing access to the tower from the courtyard.

First Floor, Temenos Astrum

This floor has been remade into very simple, Spartan living quarters, with very basic amenities and furnishings. Everything is covered in cloth right now, and Martin comes through here once a season to clean up anything left by animals and make sure nothing has been damaged.

It includes a large living room (18), with a cloak closet in its southern wall. The northern section of the tower serves as a dining room (19) and basic kitchens (20), with most of the space taken up by a tremendously large bedroom (21) that also has plenty of floor space. Off the bedroom is a large walk-in closet (22) and full bath (23). Though Axios originally envisioned it as the perfect apprentice quarters one day, it is unused currently.

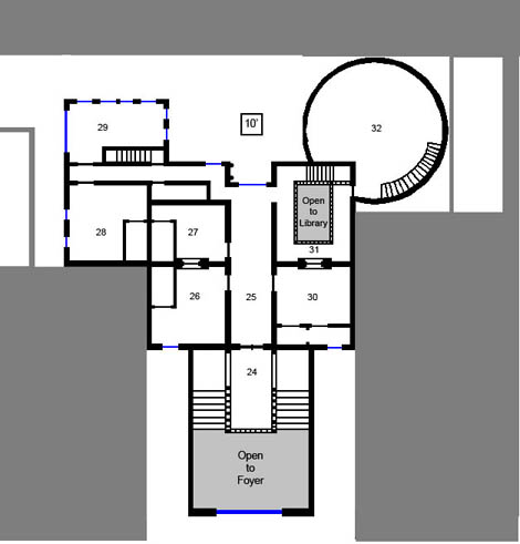
Second Floor, Cartwright House

Sanctum2.jpg

Upper Foyer (24): The upper promontory of the Foyer is carpeted in deep, lush carpeting, and railed in. It provides a fantastic view of the statuary and stained glass in the foyer. The very end of the promontory is furnished with a pair of comfortable antique chairs with high backs and a lacquered cherry wood table between the two, with a tall brass ashtray built into the table. This is frequently where Axios spends his evenings just before bed, contemplating the day and enjoying a pipe before bed. The table has a locking drawer where he stores his journal, and often does some writing in it before bed as well.

Mirror Gallery (25): This long hallway is lined with silver-framed mirrors along its length. The carpeting here is a deep midnight blue, and the ceiling is actually a single long skylight, the glass of which is tinted a slight silvery hue, lending a lunar glow to the light that shines down from above. On either side of the skylight is a line of imbedded silver discs, in the various thicknesses of the phases of the moon, repeated over and over. The large double doors that lead into this room are deep ebony with brightly polished silver accents and moon-themed door knobs. The other doors down this hall are likewise designed, in deep ebony with silver accents. At the northern end of the hall is a large picture window, framed in silver with a stylized moon at the very top center of the frame, which looks out onto the courtyard outside.

Classical Chamber (26): One of three guest quarters, the Classical Chamber is done in Mediterranean pastorals, with cream-colored paint, and light, tasteful murals. The bed is canopied in a very Greek style, and the posters are a pale pinewood carved to resemble ionic columns. The hearth features a brass satyr chasing a brass nymph as fireplace pieces, and the furnishings are done in simple Greek style.

Arabian Nights Chamber (27): With walls hung with elegant Arabian tapestried rugs, and a low silk-covered bed with plenty of pillows, this guest bedroom is done in an Arabian theme. The round table next to the bed even features a brass genie-style lamp.

Arthurian Chamber (28): The third of the household guest rooms, the Arthurian Chamber is themed in the romances of the Chivalric Era, with a four-poster bed and wispy draperies covering it, solid antique English walnut furnishings and antique tapestries featuring Arthur receiving Excalibur from the Lady in the Lake, and another showing Merlin’s seduction by Nimue.

Solarium (29): A heavily windowed room, the Solarium actually features white and cream throughout the room, with gold and bright copper finishings. The windows themselves were created by Dr. Matthias Townsend, who altered the glass to slightly increase the sunlight that shines through them, brightening it somewhat. The curtains here are sheer, allowing light into the room at all times. Because of the positioning of the windows, which have a clear view to the west, the room tends to stay slightly warmer than the rest of the house. It is decorated with a settee and other furnishings, all in oak with white-and-gold upholstery. The southern wall hung with a gold-framed mirror that is treated with a golden wash. An oak bar along that wall holds a variety of light alcohols, such as white wines, sweet cordials and similar fare.

Master Suite (30): Axios’ room is fairly sedate and demonstrates some interesting insights into his personality. It is decorated in simple furnishings, with comfortable cotton bedding and a thick, soft massive handmade quilt that is clearly years old. A tied rag rug sits just outside of the shower in his bathroom, and he uses an old beaten-up tin shaving mug.

Two simple photographs adorn the walls: one showing a cornfield, with a tall water tower in the background, though the words on the tower have been blacked out with ink, and another showing an old farmhouse, again with identifying numbers and names on mailbox blacked out.

Upper Library (31): The walls of the upper library are lined with bookshelves, all heavy with books. The southern walls flanking the hearth are lined with narrow tables and a trio of wooden chairs facing the wall, with books in glass cases above them.

Second Floor, Temenos Astrum

This floor forms the beginning of the Temenos Astrum proper, or the “Temple of Stars.” Axios’ tower, dedicated to the practice of his magics as he believes wizardry ought to be practiced — high off the ground, above the heads of those who yet wallow in their own ignorance, reaching ever closer to the stars. The fact that the Supernal Realms seem to agree with him — forming a Hallow at the very tip of the tower — makes him simply more dedicated.

Ward: The second, third and fourth floors of this tower are protected by a Ward: Potency 5, Duration 7 (eight days), Area 5 (all three floors). This Ward is renewed by magical ritual once a week. This spell is generally cast with the conjunctional "Sense the Threads" effect (Prime •• + Space ••), allowing him to know if someone begins scrutinizing, dispelling or otherwise interacting with the Ward using Arcana.

Antiquities & Curiosities, Library Annex (32): The walls of this massive room are lined with glass and oak cases, simple and sturdy, with locking cabinets. The bookshelves along the western wall are filled with Axios’ current occult library, a series of ancient treatises and grimoires on astrological magic and celestial occultism – all kept behind lock and key, of course. In the center of the room is a large, round wooden table, with a slate surface that can be written on in chalk. A brazier often sits in the center of this table, providing the only real source of heat in the room. In all, the room seems quite empty and barren, as though it were waiting for something.

Rooftop, Cartwright House

Rooftop Garden (33): Though originally used for growing vegetables and the like during the Great War by its original residents, in order to help offset the expense of food at the market, Axios uses this garden as an herb and flower garden. Specifically, each of the rectangular plots holds herbs and plants associated with two of the planetary powers — the southernmost of them holds plants associated with the sun, as well as herbs and similar plants that see use in the kitchens.

Third Floor, Temenos Astrum

Sanctum3.jpg

Intrusion Warning: When Axios expects to be out for a while, particularly during the night-time hours, he casts "Intrusion Warning" on the rooftop door, which will alert him if someone that isn't himself or Martin passes a threshold of the one yard radius that surrounds the door (which is also kept locked). Intrusion Warning: Potency 1, Duration 2 (12 hours), Area 1.

Workshop (34): The center of the workshop is a massive workbench, circular in shape with a number of “stations” around it. There is a small jeweler’s anvil in one area, a small gas torch in another and similar set-ups for the various sorts of workmanship that a variety of craftsmen might need: etching tools, leatherworking materials, tailor’s tools and a wide variety of other materials and tools, all kept meticulously organized.

The walls of this room are lined with tough wooden cabinets, all of them locking with a simple lock and key latch. These cabinets are filled with the various materials, knick-knacks, items and how-to books for creating a variety of things.

The western wall boasts a set of seven glass cases, each holding a variety of items appropriate to specific planetary correspondences and workings, one cabinet for each of the planets. These cabinets have a small disc of the appropriate metal (or simply wood, in the case of the Mercury cabinet), with the astrological symbol etched into the disc. Their contents are:

  • Sun Cabinet: A dagger with a mirror-finished blade, and intricate golden handle and quillions set with diamonds (Prime focus). A crystalline palm-sized lens, set into a sun-themed gold frame, hung on a golden chain (Space focus). Small bag of golden cloth, with a diamond buried in dried carnations and rosemary (used in strophados, for Spirit). Built-in drawers with pieces of amber, orange calcite, carnelian, quartz crystal, diamond, ruby, pipestone, sunstone, tiger’s eye, topaz and zircon. Small jars of sulfur, brass powder, bay, benzoin, dried carnations, cedar powder, cinnamon, copal, frankincense, rosemary, sandalwood powder. Small leather folio with gold foil.
  • Moon Cabinet: A silver wand, set with a piece of quartz at its tip, a sapphire in its end, and moonstones down its intricately carved length (Prime focus). A silver astrolabe, seith with moonstone chips (Space focus). Small bag of silver-white cloth, with a pearl buried in dried gardenia petals and sandalwood shavings (used in straphados, for Spirit). Built-in drawers with pieces of aquamarine, beryl, chalcedony, moonstone, quartz crystal, moonstone, mother-of-pearl, pearls, sapphires and selenite. Small jars of powdered pearl, camphor, dried gardenia petals, lemon balm, powdered lotus, myrrh, dried poppies, sandalwood powder. Small leather folio with silver foil.
  • Mercury Cabinet: A glass caduceus, hollowed and filled with quicksilver, with the serpents and wings crafted of electrum and set with small crystals (Prime focus). A small electrum sextant, hung from a chain (Space focus). Small yellow bag, with an agate dropped in lavender and lemongrass (used in straphados, for Spirit). Built-in drawers with pieces of agate, aventurine, mottled jasper and mica. Large piece of crumbly pumice, wrapped in white linen. Small jars of mercury (wax-sealed), almond, bergamot, mint, lavender, lemongrass, lemon verbena, peppermint and thyme. Small leather folio with aluminum foil.
  • Venus Cabinet: A copper chalice, set with emeralds (Prime focus). A six-foot length of green silk measuring cord, with small copper rings at each end, and little copper beads at every foot mark (Space focus). Small green bag, with a piece of lapis lazuli dropped into dried apple blossoms and rose petals (used in straphados, for Spirit). Built-in drawers with pieces of azurite, cat’s eye, calcite, coral, emerald, jade, green jasper, lapis lazuli, malachite, peridot, tourmaline and turquoise. Small jars with powdered lodestone, dried poppies, apple oil, dried crocus petals, heather, hyacinth, iris oil, lilac, magnolia oil, rose oil, dried rose petals, dried spearmint, thyme, vanilla oil and dried violet petals. Bundle of dried roses. Small leather folio with copper foil.
  • Mars Cabinet: A steel zweihander sword, its hilt wrapped in red leather and its quillions set with deep red garnets (Prime focus). Small iron replica of the wheel torture device (Space focus). Small red cloth bag, with a bloodstone dropped into asbestos, steel filings and volcanic soot (used in straphados, for Spirit). Built-in drawers with pieces of bloodstone, flint, garnet, red jasper, onyx, rhodocrosite, sardonyx and red tourmaline. Jars of asbestos, volcanic soot, powdered pyrite, steel filings, basil, coriander, cumin, dragon’s blood, ginger, peppermint oil, pine sap. Dried bundles of nettles. Small snuffbox of tobacco.
  • Jupiter Cabinet: A crown of tin, set with amethysts and cushioned with crushed blue velvet (Prime focus). A maple wand-scepter, burned with demarcations of space and set with amethysts (Space focus). Small blue cloth bag, with an amethyst dropped into dried honeysuckle and oakmoss (used for straphados, for Spirit). Built-in drawers with pieces of amethyst, lepidolite and sugilite. Small jars of anise, cinquefoil, cloves, clove oil, dried honeysuckle, hyssop, maple sap, powdered nutmeg, dried oakmoss, star anise. Bundles of dried sage. Small leather folio with tin foil.
  • Saturn Cabinet: Carved jet mourning brooch (Prime focus). A set of lead measuring scales, done in Egyptian style (Space focus). Small black cloth bag, with a single piece of obsidian dropped into amaranth and wormwood (used for straphados, for Spirit). Built-in drawers with pieces of hematite, brown jasper, jet, obsidian, onyx, serpentine and black tourmaline. Jars of coal, salt, powdered jet, lead powder, comfrey, cypress, mimosa, dried pansy petals, patchouli oil, tamarisk and wormwood. Small block of lead wrapped in black leather pouch.

Fourth Floor, Temenos Astrum

Sanctum4.jpg

Observatory (35): This large room is some twenty feet in height. Only about eight feet of the walls, however, are stone; the other twelve feet, plus the entirety of the tower-top are solid glass, providing an unprecedented view of the sky all the way around the tower. The height of the solid walls once provided just enough cover against city-glare to view the sky easily, but the advent of Chicago’s tall skyscrapers and the like has impacted that somewhat. In order to compensate, Axios arranged for Dr. Matthias Townsend to make the same sort of alterations to these windows as he did to the Solarium, except that they augment all natural lights and practically dim artificial lighting to nothing.

An old fashioned, high-powered telescope sits against the eastern wall. Its mechanisms can be set up to grant a view of nearly any part of the sky, though the lower horizon of the east is blocked by the back of the billboard directly to the east of the Temenos. Nonetheless, the view is spectacular, and the mechanism sticks up through the eastern glass walls of the Observatory, sticking up just enough to allow it to peer over the arch of the curved roof.

In the center of room is a small circular altar made of ebony and inset with an engraved seven point star, with a planetary disk at each of the points. These disks are seven dollar-coin sized disks of gold, silver, glass, copper, iron, tin and lead, each inscribed with the appropriate planetary symbol. In the center of the star sits a palm-sized marble disk engraved with the simple quartered circle that represents Terra.

Around the altar are seven rings set into the floor, one ring for each of the planets and crafted of the same materials the disks are made of. Each of the rings also has a large palm-sized gemstone set in it; where the rings represent the orbits of the planets, the gemstones represent the planets themselves. These are a piece of amber for the Sun, moonstone for the Moon, agate for Mercury, jade for Venus, red jasper for Mars, amethyst for Jupiter and hematite for Saturn. These rings are not simply imbedded in the floor, however; beneath the rings sit delicate mechanisms that allow the rings to turn by pulling the stones (which are revealed to fit into the rings by locking pegs), spinning the circle and locking the circle into place by reinserting the planetary stone. Just outside the lead circle of Jupiter, the floor is divided into twelve Houses, with each of the signs of the Zodiac carved into the marble of the floor.

Before performing rituals, Axios is careful to align the planetary rings with the signs of the Zodiac, building the microcosm of the Heavens above to serve as his work space. It is in this space that Axios performs the majority of his ritual work, transforming the work area into a correspondence-heavy environment that perfectly balanced the planetary energies at work.

The observatory is also the site of a Hallow of minor power (Rating ••), with a Contemplative Resonance. Its power is unleashed at midnight, and Axios’ typical oblation involves meditation on the position of the stars and planets at the exact moment the Hallow opens, seeking guidance for how the power granted should best be used. Should Axios not be there to tap the Hallow when it opens, the Mana coalesces as a thick, black liquid that seems to shimmer as though starlight were trapped within its syrupy depths. This forms at the very peak of the observatory’s roof and slowly drizzles down onto the altar, settling into the engraved lines of the septagram.

To collect this star-Tass, Axios simply places a receptacle beneath one of the planetary disks in the table and pushes up on its peg from beneath the table. This pushes the disc upwards and opens a hole in that point of the septagram, allowing the star-Tass — which seems to share many properties, in terms of its physical cohesion, with mercury — to drain out of the table. Interestingly, despite the altar being perfectly level and flat, the star-Tass seems to collect around the disk of the planet that seems to be exerting the most influence at the moment the Tass forms, seemingly being drawn to the metal that resonates with the strongest planetary influence.

Cellars, Cartwright House

Sanctum5.jpg

Main Cellar (36): The main cellar is generally used for dry, non-food storage. There are a variety of boxes and other things down here, as well as a couple pieces of furniture stacked in one corner. The northeastern corner of the room has a large metal door set into the wall, which is the entry into the house vault. Only Axios has the combination to this vault. The southwest corner of the room is where the lift bin is located, a large, ten-foot by two-foot box that is part of a lift mechanism. When turned on, the mechanism can raise the bin through the door to the alley outside, and lower it again, allowing heavy goods to be loaded into the bin and lowered into the cellars without having to navigate stairs or similar difficulties.

Coal Bin (37): The coal bin is a small room dedicated entirely to the storage of coal for the household furnace and boiler. A small coal chute drops into this room from the alley outside, and the door that leads into it is smaller than a normal door. The room itself is reinforced with brick and stone, and the walls are double-layered, all in the interest of providing safety in the case of something untoward.

Kitchen Cellars (38): The house’s ice box is down here, with ice delivered every three days via the liftbin in the main cellar. Other dry goods and preserves are stored down here longterm on the shelves that line the walls, with a variety of preserved meats hanging in oiled burlap bags right over the icebox. The southeast corner of the room features the dumbwaiter, allowing easy transport of food items to the kitchens above.

Boiler Room & Furnace (39): The boiler room and furnace hold the large industrial-style boiler and furnace that provide hot water and heat to the house. The room also has a small hatch that opens into the coal bin, with a wide shovel hanging on a hook next to the hatch, for easy shoveling of coal into either mechanism.

Wine Cellar (40): The walls of the wine cellar are lined with the proper diamond-shaped nooks for storing bottles of wine and alcohol. Though only about a third full, the wines here represent a heavy investment of money. Though the majority of the wines are European, about a third of the bottles are various alcohols from all over the world. A dumbwaiter in the northwest corner allows for easy transport of the bottles up to the kitchen or dining rooms.

Family Memorial (41): The doors to this room are made of dark black ebony, carved with two intricate angels, who gesture toward the door with one hand, and motion for silence with a finger over their lips with the other. A lantern hangs beside each of the doors. A plaque over the door says “Cartwright Memorial.”

The interior of the memorial is done in the same wood the doors are made of. The center of the room is a statue of an angel, wings pulled tight against her back, and a sad expression on her face. She holds a large lantern in her hands, which can be lit to provide light to the room. The pedestal upon which she stands also serves as a circular bench around the room.

Along the eastern and western walls are a number of photographs of people, all in leaden picture frames set with chips of onyx. These picture frames have built-in candle holders beneath them, with stubs of partially burnt candles set in them.

The very southern wall has an alcove built into the wall, with a pair of lanterns hanging to either side of it. In the alcove stands a simple mannequin, dressed in an old wedding dress. A small altar-like table sits before it, with only the name “Grace” carved on it. An engagement ring sits on the stand, in the middle of the “G” that makes up her name.

In addition to a room that serves as a memorial to members of the Cartwright family, there are various symbols here and there that also make it clear to anyone with an eye for such that this place is decorated with the symbols and colors of Saturn.